|
№ |
Характеристика |
Значення |
|
1 |
тип |
виробничий цех/склад |
|
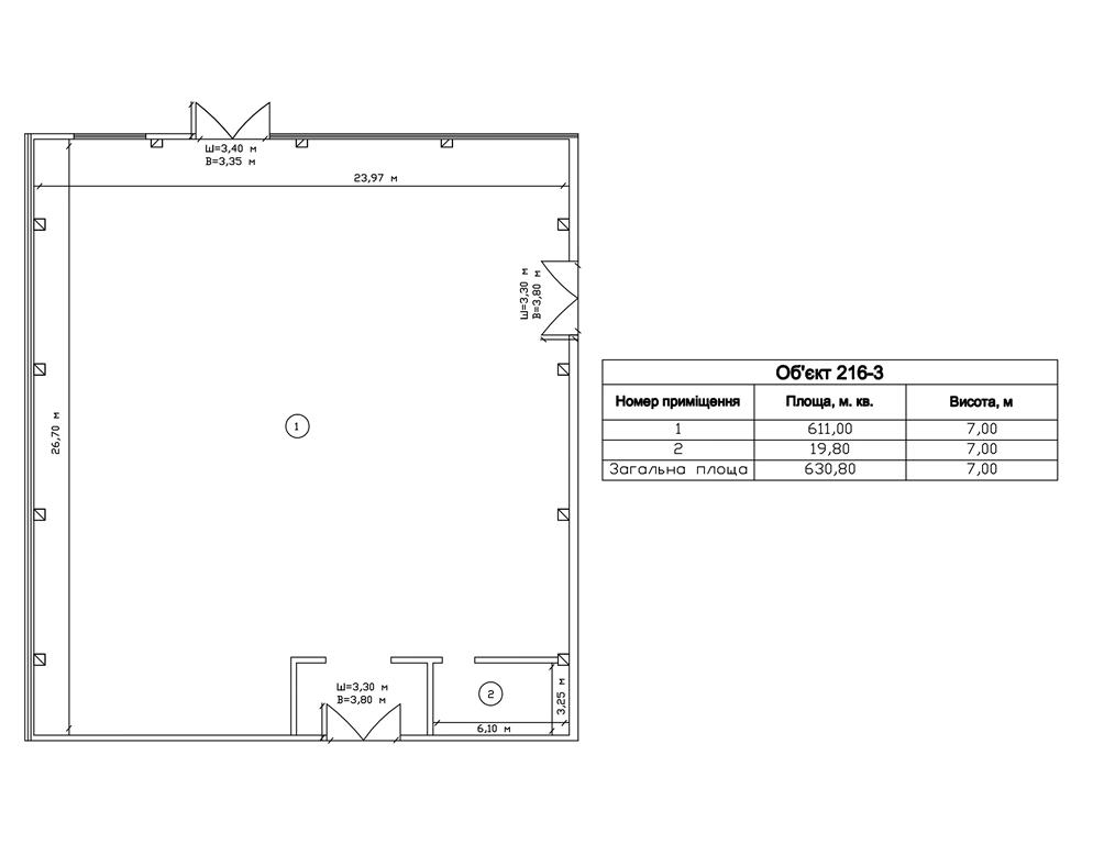
2 |
площа (м. кв.) |
630,80 |
|
4 |
поверховість/поверх |
1/1 |
|
5 |
висота (м.) |
6 |
|
6 |
стан |
придатний до експлуатації ремонту не потребує |
|
7 |
фундамент |
бетонний стрічковий |
|
8 |
матеріали стін |
цегла/ бетонні колони |
|
9 |
покрівля |
двосхила-шифер |
|
10 |
підлога |
бетонна плитка |
|
11 |
транспортна логістика |
підїздна бетонна дорога |
|
12 |
енергозабезпечення (макс потужність), КВт |
300 |
|
13 |
безпека |
огорожена територія під охороною, відеонагляд |
|
14 |
пожежна безпека |
пожежна сигналізація, пожежний гідрант |
|
15 |
додаткові приміщення |
офіси, гардероби в прилеглих приміщеннях |