|
№ |
Характеристика |
Значення |
|
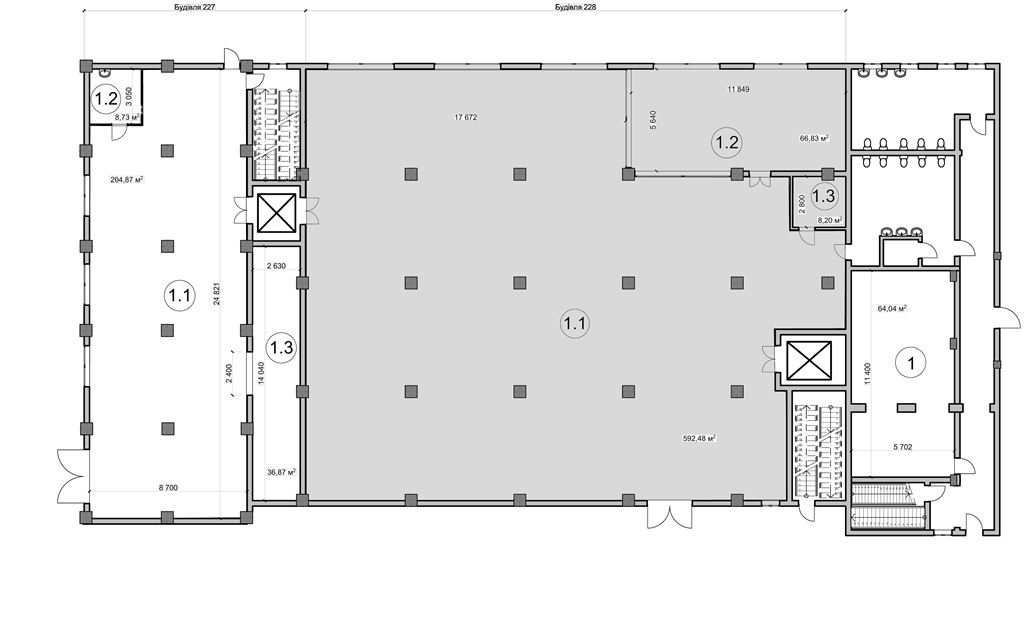
1 |
тип |
склад/виробниче приміщення |
|
2 |
площа (м. кв.) |
667,51 |
|
3 |
висота (м.) |
4 |
|
4 |
поверх |
1/2 |
|
5 |
стан |
придатний до експлуатації ремонту не потребує |
|
6 |
фундамент |
бетонний стрічковий |
|
7 |
матеріали стін |
залізобетонні панелі/цегла/ бетонні колони |
|
8 |
покрівля |
бетонне перекриття |
|
9 |
підлога |
бетон |
|
10 |
транспортна логістика |
підїздна бетонна дорога |
|
11 |
безпека |
огорожена територія під охороною, відеонагляд |