|
№ |
Характеристика |
Значення |
|
1 |
тип |
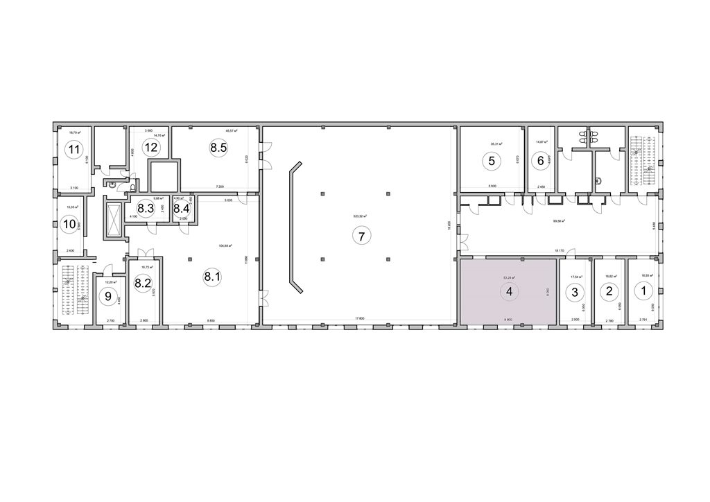
офіс |
|
2 |
площа (м. кв.) |
53,24 |
|
3 |
висота (м.) |
3,20 |
|
4 |
стан |
придатний до експлуатації ремонту не потребує |
|
5 |
фундамент |
фундаментні плити |
|
6 |
матеріали стін |
цегла/ бетонні колони |
|
7 |
покрівля |
двохсхила/шифер |
|
8 |
підлога |
паркет |
|
9 |
транспортна логістика |
підїздна бетонна дорога |
|
10 |
безпека |
огорожена територія під охороною, відеонагляд |